8.2
Смотреть все фото
БЕЗ КОМИССИИ ID: 242030 Рейтинг8.9 КлассА
Бизнес-центр «Якорь»

Аренда офиса 1000 м²

Москва, Причальный проезд, 2А

Шелепиха → 717 м
~ 7 мин
Арендная плата в месяц 3 916 700 ₽ 47 000 ₽/м² в год С учётом НДС

Презентация по предложению

Собираете информацию? Получите подробную презентацию в удобном формате!

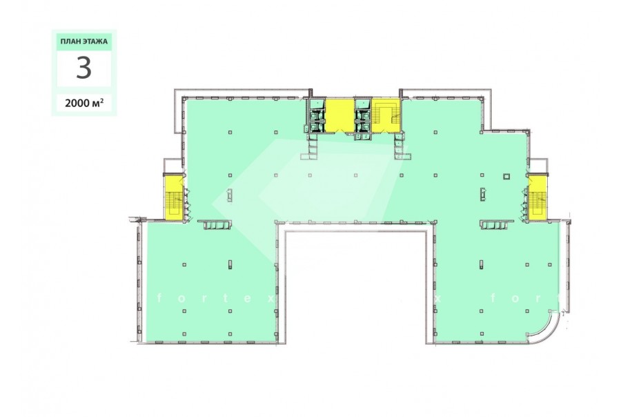
Площадь 1 000 м²
Состояние Под отделку
Планировка Открытая
Этаж 3

Описание

Преимущества
  • Класс А
  • Пешком от метро
  • Новое строительство
  • Кондиционирование и вентиляция
Предлагается в долгосрочную аренду офис класса А общей площадью 1000 квадр. метров в новом бизнес-центре "Якорь".

Москва, СЗАО, Причальный проезд, 2А

Удобная локация здания:
- Автомобиль: близость транспортных магистралей, таких как Третье Транспортное Кольцо, Звенигородское шоссе и других.
- Возможность аренды парковочных мест.
- Ближайшее метро: от метро "Шелепиха" всего 6 мин пешком

Офис класса А:
- Помещение без отделки
- Вентиляция: Приточно-вытяжная вентиляция
- Кондиционирование: центральное
- Презентабельный центральный ресепшн
- Круглосуточная охрана и видеонаблюдение

Возможность заключения контракта в соответствии с 44ФЗ по госзакупкам.

Что еще можно узнать о предложении:

1. Мы подготовили презентацию с информацией о помещении, фотографиями и планировкой, чтобы Вы могли поделиться ей с коллегами или руководством. Попросите об этом нашего менеджера по телефону в объявлении.
2. Ответим на любые Ваши вопросы, готовы обсуждать любые предложения по коммерческим условиям аренды помещения.
3. Покажем помещение в удобное для Вас время с менеджером в здании, при необходимости подготовим виртуальный тур.

Вы можете позвонить нам в любое время. Мы ответим на Ваши вопросы по будням до 19:00, а поздно вечером или в выходные зафиксируем Ваш контакт и перезвоним в рабочее время.

Коммерческие условия

Арендная плата 2 166 670 ₽
Ставка арендной платы 47 000 ₽ м²/год
Эксплуатационные расходы Включены в ставку
Налоги С учётом НДС
Тип договора Прямая аренда
Срок договора Долгосрочный
Размер платежей 1 месяц
Обеспечительный платеж 2 месяц
Статус Сдан

О бизнес-центре

Класс А
Этажность 6
Лифты Есть
Общая площадь 23 300 м²
Год постройки 2019
Паркинг Наземный и подземный
Вентиляция приточно-вытяжная
Кондиционирование центральное
Телекоммуникации Интернет/Телефония

Расположение

Подробная презентацию по предложению

Собираете информацию? Получите подробную презентацию в удобном формате, чтобы обсудить вариант с коллегами или переслать руководству!

Похожие предложения в других зданиях

БЕЗ КОМИССИИ ID: 1380789 Рейтинг8.5 КлассB+

Москва, 1-й Магистральный тупик, 5А

Беговая → 1.39 км
~ 14 мин
Арендная плата в месяц 4 528 480 ₽ 56 600 ₽/м² в год С учётом НДС
Характеристики 960 м² 4 - 6 этаж Готово к въезду
Преимущества
  • Класс B+
  • Пешком от метро
  • Кондиционирование и вентиляция

Предлагается в прямую аренду помещение под офис класса B+ общей площадью 960 квадр. метров в бизнес-центре "Магистраль Плаза"... подробнее

Презентация по предложению

Собираете информацию? Получите подробную презентацию в удобном формате!

БЕЗ КОМИССИИ ID: 1380790 Рейтинг8.5 КлассB+

Москва, 1-й Магистральный тупик, 5А

Беговая → 1.39 км
~ 14 мин
Арендная плата в месяц 4 150 438 ₽ 45 800 ₽/м² в год С учётом НДС
Характеристики 1 087 м² 4 - 6 этаж Готово к въезду
Преимущества
  • Класс B+
  • Пешком от метро
  • Кондиционирование и вентиляция

Предлагается в прямую аренду офисный блок класса B+ общей площадью 1087 квадр. метров в бизнес-центре "Магистраль Плаза"... подробнее

Презентация по предложению

Собираете информацию? Получите подробную презентацию в удобном формате!

БЕЗ КОМИССИИ ID: 1380445 Рейтинг8.5 КлассB+

Москва, 1-й Магистральный тупик, 5А

Беговая → 1.39 км
~ 14 мин
Арендная плата в месяц 4 040 407 ₽ 52 300 ₽/м² в год С учётом НДС
Характеристики 927 м² 2 - 6 этаж Готово к въезду
Преимущества
  • Класс B+
  • Пешком от метро
  • Кондиционирование и вентиляция

Сдается в долгосрочную прямую аренду офисный блок класса B+ общей площадью 927 кв.м в бизнес-центре "Магистраль Плаза"... подробнее

Презентация по предложению

Собираете информацию? Получите подробную презентацию в удобном формате!

БЕЗ КОМИССИИ ID: 1314479 Рейтинг8.8 КлассА

Москва, Береговой проезд, 5

Шелепиха → 1.48 км
~ 15 мин
Арендная плата в месяц 4 082 333 ₽ 49 000 ₽/м² в год С учётом НДС
Характеристики 1 000 м² 13 этаж Готово к въезду
Преимущества
  • Класс А
  • Пешком от метро
  • Кондиционирование и вентиляция
  • Свой паркинг

Сдается в прямую аренду высококачественный сервисный офис на 90 рабочих мест в новом бизнес-центре "Фили Град"... подробнее

>

Виртуальный тур

Презентация по предложению

Собираете информацию? Получите подробную презентацию в удобном формате!

БЕЗ КОМИССИИ ID: 1380777 Рейтинг8.9 КлассА

Москва, Тестовская улица, 10

Международная → 357 м
~ 5 мин
Арендная плата в месяц 6 429 400 ₽ 75 600 ₽/м² в год С учётом НДС
Характеристики 1 020 м² 1 - 2 этаж Готово к въезду
Преимущества
  • Класс А
  • Пешком от метро
  • Кондиционирование и вентиляция
  • Свой паркинг
  • Развитая инфраструктура

Сдается в долгосрочную аренду помещение под офис класса А общей площадью 1020 кв. метров в бизнес-центре "Северная Башня"... подробнее

Презентация по предложению

Собираете информацию? Получите подробную презентацию в удобном формате!

Посмотреть все похожие предложения
Отнеситесь рационально к процессу поиска нового офиса!

Просто ответьте на 3 вопроса, и наши специалисты сами предложат оптимальные варианты под ваш бюджет

.