8.2
Смотреть все фото
БЕЗ КОМИССИИ ID: 1380143 Рейтинг7.9 КлассB+
Бизнес-центр «Южный Порт»

Аренда офиса 570 м²

Москва, 2-й Южнопортовый проезд, 16 с1

Кожуховская → 611 м
~ 6 мин
Арендная плата в месяц 1 282 500 ₽ 27 000 ₽/м² в год С учётом НДС

Презентация по предложению

Собираете информацию? Получите подробную презентацию в удобном формате!

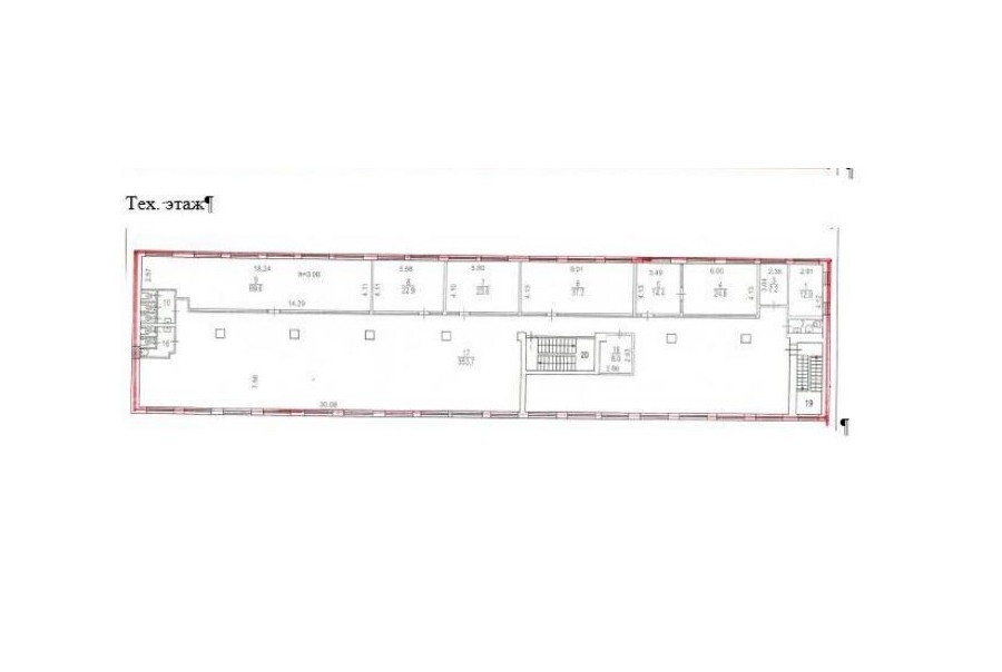
Площадь 570 м²
Состояние Готово к въезду
Планировка Смешанная
Этаж 4

Описание

Преимущества
  • Класс B+
  • Пешком от метро
  • Кондиционирование и вентиляция
  • Свой паркинг
  • Несколько провайдеров связи
Предлагается в прямую аренду офисный блок класса B+ общей площадью 570 кв.м в бизнес-центре "Южный Порт".

Москва, ЮВАО, 2-й Южнопортовый проезд, 16 с1

Удобная локация здания:
- Автомобиль: близость транспортных магистралей, таких как Третье Транспортное Кольцо, Волгоградский проспект, Проспект Андропова и других.
- Возможность аренды парковочных мест.
- Ближайшее метро: от метро "Кожуховская" всего 6 мин пешком

Офис класса B+:
- Офис с отделкой, полностью готов к аренде
- Вентиляция: Приточно-вытяжная вентиляция
- Кондиционирование: сплит-системы
- Круглосуточная охрана и видеонаблюдение

Возможность заключения контракта в соответствии с 44ФЗ по госзакупкам.

Если данное предложение подходит Вашему запросу:

1. Мы отправим Вам подробную презентацию с планировкой и фотографиями в течение 10 минут после звонка, чтобы Вы могли поделиться информацией с руководством или с коллегами.
2. Ответим на любые Ваши вопросы, готовы обсуждать любые предложения по коммерческим условиям аренды помещения.
3. Проводим показы ежедневно, договоримся на удобное для Вас время. Можем организовать виртуальный тур по офисному блоку.

Вы можете позвонить нам в любое время. Мы ответим на Ваши вопросы по будням до 19:00, а поздно вечером или в выходные зафиксируем Ваш контакт и перезвоним в рабочее время.

Коммерческие условия

Арендная плата 1 282 500 ₽
Ставка арендной платы 27 000 ₽ м²/год
Эксплуатационные расходы Включены в ставку
Налоги С учётом НДС
Тип договора Прямая аренда
Срок договора от 11 месяцев
Размер платежей 1 месяц
Обеспечительный платеж 2 месяц
Статус Свободен

О бизнес-центре

Класс B+
Этажность 7
Лифты Есть
Общая площадь 9 700 м²
Год постройки 2011
Паркинг Наземный
Вентиляция приточно-вытяжная
Кондиционирование сплит-системы
Телекоммуникации Интернет/Телефония

Расположение

Подробная презентацию по предложению

Собираете информацию? Получите подробную презентацию в удобном формате, чтобы обсудить вариант с коллегами или переслать руководству!

Похожие предложения в других зданиях

БЕЗ КОМИССИИ ID: 474417 Рейтинг7.5 КлассB

Москва, Шарикоподшипниковская улица, 13 с1

Дубровка → 125 м
~ 1 мин
Арендная плата в месяц 1 437 917 ₽ 29 000 ₽/м² в год С учётом НДС
Характеристики 595 м² 3 этаж Готово к въезду
Преимущества
  • Класс B
  • Пешком от метро
  • Кондиционирование и вентиляция
  • Свой паркинг
  • Развитая инфраструктура

Сдается в аренду офисное помещение класса B общей площадью 595 кв.м в бизнес-центре "Дубровка"... подробнее

Презентация по предложению

Собираете информацию? Получите подробную презентацию в удобном формате!

ВОЗМОЖНО ОСВОБОЖДЕНИЕ ID: 279117 Рейтинг8.0 КлассB

Москва, Шарикоподшипниковская улица, 13 с62

Волгоградский проспект → 899 м
~ 9 мин
Арендная плата в месяц 1 264 200 ₽ 25 200 ₽/м² в год С учётом НДС
Характеристики 602 м² 3 этаж Готово к въезду
Преимущества
  • Класс B
  • Пешком от метро
  • Кондиционирование и вентиляция
  • Свой паркинг
  • Несколько провайдеров связи

Предлагается в долгосрочную прямую аренду помещение под офис класса B общей площадью 602 квадратных метров в недавно отреконструированном бизнес-центре "Шарикоподшипниковский"... подробнее

>

Виртуальный тур

Презентация по предложению

Собираете информацию? Получите подробную презентацию в удобном формате!

БЕЗ КОМИССИИ ID: 1183229 Рейтинг9.3 КлассB+

Москва, проспект Андропова, 18 к6

Технопарк → 355 м
~ 4 мин
Арендная плата в месяц 1 435 700 ₽ 29 300 ₽/м² в год С учётом НДС
Характеристики 588 м² 1 этаж Готово к въезду
Преимущества
  • Класс B+
  • Пешком от метро
  • Кондиционирование и вентиляция
  • Развитая инфраструктура

Собственник сдает в долгосрочную аренду офисный блок класса А площадью 588 кв.м в бизнес-центре "Нагатино Айлэнд"... подробнее

>

Виртуальный тур

Презентация по предложению

Собираете информацию? Получите подробную презентацию в удобном формате!

БЕЗ КОМИССИИ ID: 1378061 Рейтинг7.8 КлассB

Москва, улица Мастеркова, 4

Автозаводская → 69 м
~ 1 мин
Арендная плата в месяц 1 350 000 ₽ 30 000 ₽/м² в год С учётом НДС
Характеристики 540 м² 2 этаж Готово к въезду
Преимущества
  • Класс B
  • Пешком от метро
  • Кондиционирование и вентиляция
  • Свой паркинг
  • Развитая инфраструктура

Сдается в долгосрочную прямую аренду офисное помещение класса B площадью 540 кв. метров в бизнес-центре... подробнее

Презентация по предложению

Собираете информацию? Получите подробную презентацию в удобном формате!

БЕЗ КОМИССИИ ID: 1282190 Рейтинг8.5 КлассB+

Москва, улица Ленинская Слобода, 26 с2

Автозаводская → 428 м
~ 4 мин
Арендная плата в месяц 1 540 000 ₽ 30 800 ₽/м² в год С учётом НДС
Характеристики 600 м² 2 этаж Готово к въезду
Преимущества
  • Класс B+
  • Пешком от метро
  • Кондиционирование и вентиляция
  • Свой паркинг

Предлагается в прямую аренду офисное помещение класса B+ общей площадью 600 кв.м в новом Офисно-торговом центре "Глобал Молл"... подробнее

Презентация по предложению

Собираете информацию? Получите подробную презентацию в удобном формате!

Посмотреть все похожие предложения
Отнеситесь рационально к процессу поиска нового офиса!

Просто ответьте на 3 вопроса, и наши специалисты сами предложат оптимальные варианты под ваш бюджет

.