- По умолчанию
- По уменьшению площади
- По увеличению площади
- По уменьшению цены
- По увеличению цены
- По уменьшению ставки
- По увеличению ставки
Москва, Николо-Хованское деревня, уч12
- Класс B
- Пешком от метро
- Новое строительство
- Кондиционирование и вентиляция
В продаже офисное помещение общей площадью 287 квадратных метров в строящемся бизнес-центре "БЦ Прокшино". Год ввода в экслуатацию 2026. .. подробнее
Презентация по предложению
Собираете информацию? Получите подробную презентацию в удобном формате!
Хотите узнать больше о предложении?
Изучите предложение в подробной презентации и делитесь с коллегам для обсуждения! Введите Ваши данные, мы пришлем ее в течение нескольких минут!
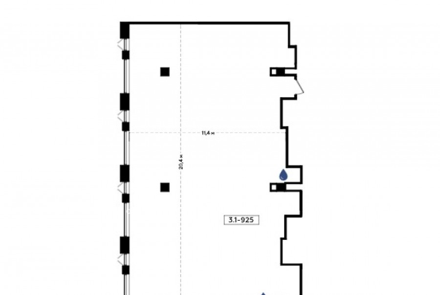
Москва, Николо-Хованское деревня, уч12
- Класс B
- Пешком от метро
- Новое строительство
- Кондиционирование и вентиляция
В продаже офис площадью 237 квадратных метров в строящемся бизнес-центре "БЦ Прокшино". Год ввода в экслуатацию 2026. .. подробнее
Презентация по предложению
Собираете информацию? Получите подробную презентацию в удобном формате!
Хотите узнать больше о предложении?
Изучите предложение в подробной презентации и делитесь с коллегам для обсуждения! Введите Ваши данные, мы пришлем ее в течение нескольких минут!
 
                        Ответьте на вопросы и получите все самые интересные предложения от опытных брокеров Fortex.Group в течение 15 минут!
 
									
										 
									
										 
																
						 
																
						
