8.2
Смотреть все фото
БЕЗ КОМИССИИ ID: 1380534 Рейтинг8.5 КлассB

Москва, 17-й проезд Марьиной Рощи, 9

Бутырская → 778 м
~ 8 мин
Стоимость 46.64 млн ₽ 440 000 ₽/м²

Презентация по предложению

Собираете информацию? Получите подробную презентацию в удобном формате!

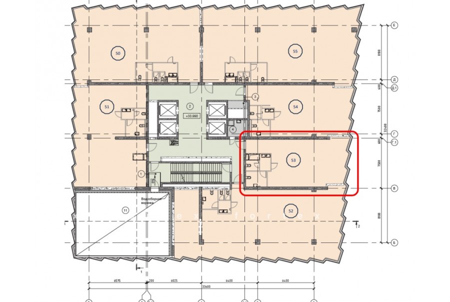
Площадь 106 м²
Состояние Под отделку
Планировка Открытая
Этаж 9

Описание

Преимущества
  • Класс B
  • Пешком от метро
  • Новое строительство
  • Кондиционирование и вентиляция
  • Свой паркинг
В продаже офисное помещение общей площадью 106 кв.м в строящемся бизнес-центре. Год ввода в экслуатацию 2027.

Помещение можно адаптировать под любой бизнес благодаря функциональной планировке - идеальный баланс комфорта и экономической выгоды. Оптимальное решение для стабильного бизнеса или выгодных инвестиций.

Офис класса B:
- Помещение без отделки
- Вентиляция: Приточно-вытяжная вентиляция
- Кондиционирование: сплит-системы

О офисном центре:
Москва, СВАО, 17-й проезд Марьиной Рощи, 9

Удобная локация здания:
- Автомобиль: близость транспортных магистралей, таких как Проспект Мира, Третье Транспортное Кольцо, Дмитровское шоссе, Бутырская улица и других.
- Возможность аренды парковочных мест.
- Ближайшее метро: от метро "Бутырская" всего 8 мин пешком



Если данное предложение подходит Вашему запросу:

1. Мы отправим Вам подробную презентацию с планировкой и фотографиями в течение 10 минут после звонка, чтобы Вы могли поделиться информацией с руководством или с коллегами.
2. Задайте любые вопросы менеджеру по телефону, готовы обсуждать любые предложения по финансовым условиям договора продажи.

Звоните нам в любое время. По будням мы сможем ответить на Ваши вопросы до 19:00. В выходные или вечернее время мы передадим Ваш контакт нашему менеджеру.

О бизнес-центре

Класс B
Этажность 27
Лифты Есть
Общая площадь 16 521 м²
Год постройки 2027
Паркинг Подземный
Вентиляция приточно-вытяжная
Кондиционирование сплит-системы
Телекоммуникации Интернет/Телефония

Расположение

Подробная презентацию по предложению

Собираете информацию? Получите подробную презентацию в удобном формате, чтобы обсудить вариант с коллегами или переслать руководству!

Похожие предложения в других зданиях

БЕЗ КОМИССИИ ID: 1321210 Рейтинг5.8 КлассB

Москва, Огородный проезд, 5А с4

Бутырская → 420 м
~ 5 мин
Стоимость 3 999 008 000 ₽ 153 800 ₽/м²
Характеристики 26 000 м² 1 - 8 этаж Готово к въезду
Преимущества
  • Класс B
  • Пешком от метро
  • Кондиционирование и вентиляция
  • Свой паркинг
  • Развитая инфраструктура

Продается офис общей площадью 26000 кв. метров в бизнес-центре "Огородный". .. подробнее

Презентация по предложению

Собираете информацию? Получите подробную презентацию в удобном формате!

БЕЗ КОМИССИИ ID: 1328284 Рейтинг5.8 КлассB

Москва, Огородный проезд, 5А с4

Бутырская → 420 м
~ 5 мин
Стоимость 263 040 000 ₽ 160 000 ₽/м²
Характеристики 1 644 м² 4 этаж Готово к въезду
Преимущества
  • Класс B
  • Пешком от метро
  • Кондиционирование и вентиляция
  • Свой паркинг
  • Развитая инфраструктура

Продается офисный блок площадью 1644 квадратных метров в бизнес-центре "Огородный". .. подробнее

Презентация по предложению

Собираете информацию? Получите подробную презентацию в удобном формате!

БЕЗ КОМИССИИ ID: 1311443 Рейтинг8.9 КлассА

Москва, Огородный проезд, 16/1 с2

Бутырская → 250 м
~ 3 мин
Стоимость 1 098 900 000 ₽ 330 000 ₽/м²
Характеристики 3 330 м² 8 - 9 этаж Под отделку
Преимущества
  • Класс А
  • Пешком от метро
  • Новое строительство
  • Кондиционирование и вентиляция
  • Свой паркинг

Продается офисный блок площадью 3330 кв. метров в бизнес-центре "ОСТАНКИНО BUSINESS PARK". .. подробнее

Презентация по предложению

Собираете информацию? Получите подробную презентацию в удобном формате!

БЕЗ КОМИССИИ ID: 1311442 Рейтинг8.9 КлассА

Москва, Огородный проезд, 16/1 с2

Бутырская → 250 м
~ 3 мин
Стоимость 632 700 000 ₽ 380 000 ₽/м²
Характеристики 1 665 м² 9 этаж Под отделку
Преимущества
  • Класс А
  • Пешком от метро
  • Новое строительство
  • Кондиционирование и вентиляция
  • Свой паркинг

Продается офис площадью 1665 квадратных метров в бизнес-центре "ОСТАНКИНО BUSINESS PARK". .. подробнее

Презентация по предложению

Собираете информацию? Получите подробную презентацию в удобном формате!

БЕЗ КОМИССИИ ID: 1379458 Рейтинг8.2 КлассB+

Москва, Новодмитровская улица, 2 к1

Дмитровская → 864 м
~ 9 мин
Стоимость 663 680 000 ₽ 320 000 ₽/м²
Характеристики 1 700 м² 4 этаж Готово к въезду
Преимущества
  • Класс B+
  • Пешком от метро
  • Кондиционирование и вентиляция
  • Развитая инфраструктура

В продаже офис общей площадью 1700 кв.м в бизнес-центре "Савеловский Сити". .. подробнее

Презентация по предложению

Собираете информацию? Получите подробную презентацию в удобном формате!

Посмотреть все похожие предложения
Отнеситесь рационально к процессу поиска нового офиса!

Просто ответьте на 3 вопроса, и наши специалисты сами предложат оптимальные варианты под ваш бюджет

.