Аренда офисов в бизнес-центре Новочерёмушкинская 25

БЕЗ КОМИССИИ ID: 304976 Рейтинг бизнес-центра5.5 КлассB
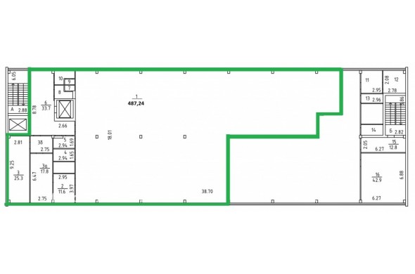
Площадь 668 м²
Арендная плата в месяц 668 000 ₽ 12 000 ₽/м² С учётом НДС
2 этаж
Под отделку
Открытая планировка
Для получения консультации позвоните по телефону +7 (926) 019-15-59

Презентация по предложению

Собираете информацию? Получите подробную презентацию в удобном формате!

О бизнес-центре
Класс B
Этажность 6
Общая площадь 6 486 м²
Год постройки 1978
Паркинг Стихийный
Вентиляция естественная
Кондиционирование центральное
Коммерческие условия
Арендная плата 668 000 ₽
Ставка арендной платы 12 000 ₽ м²/год
Эксплуатационные расходы Включены в ставку
Налоги С учётом НДС
Тип договора Прямая аренда
Срок договора от 11 месяцев
Размер платежей 1 месяц
Обеспечительный платеж 1 месяц
БЕЗ КОМИССИИ ID: 302041 Рейтинг бизнес-центра5.5 КлассB
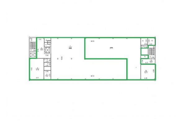
Площадь 980 м²
Арендная плата в месяц 980 000 ₽ 12 000 ₽/м² С учётом НДС
3 этаж
Готово к въезду
Открытая планировка
Для получения консультации позвоните по телефону +7 (926) 011-30-21

Презентация по предложению

Собираете информацию? Получите подробную презентацию в удобном формате!

О бизнес-центре
Класс B
Этажность 6
Общая площадь 6 486 м²
Год постройки 1978
Паркинг Стихийный
Вентиляция естественная
Кондиционирование центральное
Коммерческие условия
Арендная плата 980 000 ₽
Ставка арендной платы 12 000 ₽ м²/год
Эксплуатационные расходы Включены в ставку
Налоги С учётом НДС
Тип договора Прямая аренда
Срок договора от 11 месяцев
Размер платежей 1 месяц
Обеспечительный платеж 1 месяц
БЕЗ КОМИССИИ ID: 1284243 Рейтинг бизнес-центра5.5 КлассB
Площадь 1111 м²
Арендная плата в месяц 949 812 ₽ 10 300 ₽/м² С учётом НДС
3 - 6 этаж
Готово к въезду
Смешанная планировка
Для получения консультации позвоните по телефону +7 (925) 575-40-52

Презентация по предложению

Собираете информацию? Получите подробную презентацию в удобном формате!

О бизнес-центре
Класс B
Этажность 6
Общая площадь 6 486 м²
Год постройки 1978
Паркинг Стихийный
Вентиляция естественная
Кондиционирование центральное
Коммерческие условия
Арендная плата 863 530 ₽
Ставка арендной платы 10 300 ₽ м²/год
Эксплуатационные расходы Включены в ставку
Налоги С учётом НДС
Тип договора Прямая аренда
Срок договора от 11 месяцев
Размер платежей 1 месяц
Обеспечительный платеж 1 месяц
БЕЗ КОМИССИИ ID: 304980 Рейтинг бизнес-центра5.5 КлассB
Площадь 1648 м²
Арендная плата в месяц 1 648 000 ₽ 12 000 ₽/м² С учётом НДС
2 - 3 этаж
Под отделку
Открытая планировка
Для получения консультации позвоните по телефону +7 (929) 516-23-92

Презентация по предложению

Собираете информацию? Получите подробную презентацию в удобном формате!

О бизнес-центре
Класс B
Этажность 6
Общая площадь 6 486 м²
Год постройки 1978
Паркинг Стихийный
Вентиляция естественная
Кондиционирование центральное
Коммерческие условия
Арендная плата 1 648 000 ₽
Ставка арендной платы 12 000 ₽ м²/год
Эксплуатационные расходы Включены в ставку
Налоги С учётом НДС
Тип договора Прямая аренда
Срок договора от 11 месяцев
Размер платежей 1 месяц
Обеспечительный платеж 1 месяц
БЕЗ КОМИССИИ ID: 304981 Рейтинг бизнес-центра5.5 КлассB
Площадь 1965 м²
Арендная плата в месяц 1 965 000 ₽ 12 000 ₽/м² С учётом НДС
3 - 4 этаж
Под отделку
Открытая планировка
Для получения консультации позвоните по телефону +7 (926) 011-26-79

Презентация по предложению

Собираете информацию? Получите подробную презентацию в удобном формате!

О бизнес-центре
Класс B
Этажность 6
Общая площадь 6 486 м²
Год постройки 1978
Паркинг Стихийный
Вентиляция естественная
Кондиционирование центральное
Коммерческие условия
Арендная плата 1 965 000 ₽
Ставка арендной платы 12 000 ₽ м²/год
Эксплуатационные расходы Включены в ставку
Налоги С учётом НДС
Тип договора Прямая аренда
Срок договора от 11 месяцев
Размер платежей 1 месяц
Обеспечительный платеж 1 месяц
БЕЗ КОМИССИИ ID: 304979 Рейтинг бизнес-центра5.5 КлассB
Площадь 2633 м²
Арендная плата в месяц 2 633 000 ₽ 12 000 ₽/м² С учётом НДС
2 - 4 этаж
Под отделку
Открытая планировка
Для получения консультации позвоните по телефону +7 (929) 604-22-14

Презентация по предложению

Собираете информацию? Получите подробную презентацию в удобном формате!

О бизнес-центре
Класс B
Этажность 6
Общая площадь 6 486 м²
Год постройки 1978
Паркинг Стихийный
Вентиляция естественная
Кондиционирование центральное
Коммерческие условия
Арендная плата 2 633 000 ₽
Ставка арендной платы 12 000 ₽ м²/год
Эксплуатационные расходы Включены в ставку
Налоги С учётом НДС
Тип договора Прямая аренда
Срок договора от 11 месяцев
Размер платежей 1 месяц
Обеспечительный платеж 1 месяц
БЕЗ КОМИССИИ ID: 199543 Рейтинг бизнес-центра5.5 КлассB
Площадь 3702 м²
Арендная плата в месяц 2 776 500 ₽ 9 000 ₽/м² С учётом НДС
2 - 6 этаж
Под отделку
Открытая планировка
Для получения консультации позвоните по телефону +7 (926) 011-26-79

Презентация по предложению

Собираете информацию? Получите подробную презентацию в удобном формате!

О бизнес-центре
Класс B
Этажность 6
Общая площадь 6 486 м²
Год постройки 1978
Паркинг Стихийный
Вентиляция естественная
Кондиционирование центральное
Коммерческие условия
Арендная плата 2 776 500 ₽
Ставка арендной платы 9 000 ₽ м²/год
Эксплуатационные расходы Включены в ставку
Налоги С учётом НДС
Тип договора Прямая аренда
Срок договора от 11 месяцев
Размер платежей 1 месяц
Обеспечительный платеж 1 месяц
Предложения в похожих зданиях в Москве:
Площадь Арендная плата Класс
Посмотрите все предложения в близи БЦ «Новочерёмушкинская 25»:
Каталог обновлен 15 Апреля 2026
Получите каталог помещений!

Подберем предложения по Вашим критериям и пришлем в течение 15 минут!

Контакты

Адрес
Москва, Новочерёмушкинская улица, 25
Телефон для связи
Получите подробную презентацию

Подробная презентация по офисным помещениям в
бизнес-центре «Новочерёмушкинская 25» уже готова!

.