8.2
Смотреть все фото
БЕЗ КОМИССИИ ID: 235362 Рейтинг8.9 КлассА
Бизнес-центр «Якорь»

Аренда офиса 2030 м²

Москва, Причальный проезд, 2А

Шелепиха → 717 м
~ 7 мин
Арендная плата в месяц 7 950 800 ₽ 47 000 ₽/м² в год С учётом НДС

Презентация по предложению

Собираете информацию? Получите подробную презентацию в удобном формате!

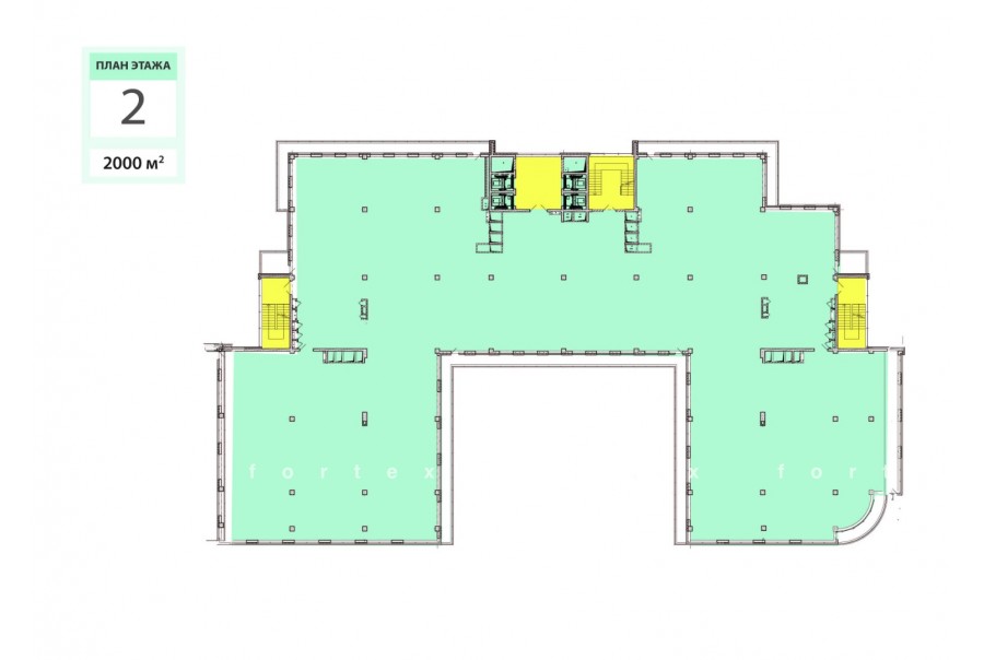
Площадь 2 030 м²
Состояние Отделка под арендатора
Планировка Открытая
Этаж 2

Описание

Преимущества
  • Класс А
  • Пешком от метро
  • Новое строительство
  • Кондиционирование и вентиляция
Предлагается в прямую аренду офисный блок класса А площадью 2030 кв.м в современном бизнес-центре "Якорь".

Москва, СЗАО, Причальный проезд, 2А

Удобная локация здания:
- Автомобиль: близость транспортных магистралей, таких как Третье Транспортное Кольцо, Звенигородское шоссе и других.
- Возможность аренды парковочных мест.
- Ближайшее метро: от метро "Шелепиха" всего 9 мин пешком

Офис класса А:
- Возможность ремонта по предпочтениям арендатора
- Вентиляция: Приточно-вытяжная вентиляция
- Кондиционирование: центральное
- Презентабельный центральный рецепшн
- Круглосуточная охрана и видеонаблюдение

Возможность заключения контракта в соответствии с 44ФЗ по госзакупкам.

Если предложение предварительно Вам подходит:

1. Мы подготовили презентацию с информацией о помещении, фотографиями и планировкой, чтобы Вы могли поделиться ей с коллегами или руководством. Попросите об этом нашего менеджера по телефону в объявлении.
2. Ответим на любые Ваши вопросы, готовы обсуждать любые предложения по коммерческим условиям аренды помещения.
3. Проводим показы ежедневно, договоримся на удобное для Вас время. Можем организовать виртуальный тур по офисному блоку.

Звоните нам в любое время. По будням мы сможем ответить на Ваши вопросы до 19:00. В выходные или вечернее время мы передадим Ваш контакт нашему менеджеру по аренде.

Коммерческие условия

Арендная плата 6 090 000 ₽
Ставка арендной платы 47 000 ₽ м²/год
Эксплуатационные расходы Включены в ставку
Налоги С учётом НДС
Тип договора Прямая аренда
Срок договора Долгосрочный
Размер платежей 1 месяц
Обеспечительный платеж 3 месяц
Статус Сдан

О бизнес-центре

Класс А
Этажность 6
Лифты Есть
Общая площадь 23 300 м²
Год постройки 2019
Паркинг Наземный и подземный
Вентиляция приточно-вытяжная
Кондиционирование центральное
Телекоммуникации Интернет/Телефония

Расположение

Подробная презентацию по предложению

Собираете информацию? Получите подробную презентацию в удобном формате, чтобы обсудить вариант с коллегами или переслать руководству!

Похожие предложения в других зданиях

БЕЗ КОМИССИИ ID: 929368 Рейтинг8.8 КлассА

Москва, Береговой проезд, 5

Шелепиха → 1.48 км
~ 15 мин
Арендная плата в месяц 7 166 667 ₽ 43 000 ₽/м² в год С учётом НДС
Характеристики 2 000 м² 3 - 11 этаж Готово к въезду
Преимущества
  • Класс А
  • Пешком от метро
  • Кондиционирование и вентиляция
  • Свой паркинг

Предлагаем в долгосрочную прямую аренду офисный блок класса А общей площадью 2000 квадратных метров в новом бизнес-центре "Фили Град"... подробнее

Презентация по предложению

Собираете информацию? Получите подробную презентацию в удобном формате!

БЕЗ КОМИССИИ ID: 1329015 Рейтинг8.9 КлассА

Москва, Тестовская улица, 10

Международная → 357 м
~ 5 мин
Арендная плата в месяц 10 564 285 ₽ 69 500 ₽/м² в год С учётом НДС
Характеристики 1 823 м² 20 этаж Готово к въезду
Преимущества
  • Класс А
  • Пешком от метро
  • Кондиционирование и вентиляция
  • Свой паркинг
  • Развитая инфраструктура

Предлагается в долгосрочную прямую аренду помещение под офис класса А площадью 1823 квадр. метров в бизнес-центре "Северная Башня"... подробнее

Презентация по предложению

Собираете информацию? Получите подробную презентацию в удобном формате!

БЕЗ КОМИССИИ ID: 1281322 Рейтинг9.2 КлассА

Москва, улица Сергея Макеева, 13

Улица 1905 года → 931 м
~ 9 мин
Арендная плата в месяц 8 906 332 ₽ 46 900 ₽/м² в год С учётом НДС
Характеристики 2 279 м² 6 - 7 этаж Готово к въезду
Преимущества
  • Класс А
  • Пешком от метро
  • Кондиционирование и вентиляция
  • Свой паркинг
  • Развитая инфраструктура

Сдаем в прямую аренду помещение под офис класса А площадью 2279 квадр. метров в бизнес-центре "Marr Plaza"... подробнее

Презентация по предложению

Собираете информацию? Получите подробную презентацию в удобном формате!

БЕЗ КОМИССИИ ID: 1286603 Рейтинг9.2 КлассА

Москва, улица Сергея Макеева, 13

Улица 1905 года → 931 м
~ 9 мин
Арендная плата в месяц 7 334 317 ₽ 48 800 ₽/м² в год С учётом НДС
Характеристики 1 805 м² 5 - 7 этаж Готово к въезду
Преимущества
  • Класс А
  • Пешком от метро
  • Кондиционирование и вентиляция
  • Свой паркинг
  • Развитая инфраструктура

Предлагается в аренду офис класса А общей площадью 1805 кв. метров в бизнес-центре "Marr Plaza"... подробнее

Презентация по предложению

Собираете информацию? Получите подробную презентацию в удобном формате!

БЕЗ КОМИССИИ ID: 1374333 Рейтинг8.4 КлассB

Москва, улица Авиаконструктора Сухого, 2 к2

ЦСКА → 666 м
~ 7 мин
Арендная плата в месяц 7 616 667 ₽ 45 700 ₽/м² в год С учётом НДС
Характеристики 2 000 м² 3 этаж Готово к въезду
Преимущества
  • Класс B
  • Пешком от метро
  • Новое строительство
  • Кондиционирование и вентиляция

Предлагаем в аренду офисное помещение класса B общей площадью 2000 кв. метров в новом бизнес-центре... подробнее

Презентация по предложению

Собираете информацию? Получите подробную презентацию в удобном формате!

Посмотреть все похожие предложения
Отнеситесь рационально к процессу поиска нового офиса!

Просто ответьте на 3 вопроса, и наши специалисты сами предложат оптимальные варианты под ваш бюджет

.